株式会社 SYNC | SYNC-FURNNITURE | シンクファニチャー は、お客様のライフスタイルに合ったキッチンや家具のオーダーメイド製作・販売を行っております


リノベマンション見学会@八幡西区|2026.05.16


April 17, 2026



title: リノベマンション見学会@八幡西区|2026.05.16 | Page No,662 | No.1 | sync-furniture | 株式会社 SYNC | 福岡県 家具工房 | オーダーメイドキッチン

プランニングからキッチン・家具の設計・製作・取付まで、SYNC-FURNITUREが担当した、マンションリノベーションの完成見学会を開催します。

「オーダーキッチン・家具屋だからこそできる空間」を形にするSYNC HAUS(シンクハウス)の第1弾
昨年秋からリノベーション工事を進め、12月に完成したばかりの自社マンションです。

コンセプトは、「北欧ヴィンテージ家具が似合う空間」。

キッチンが主役として前に出るのではなく、空間の雰囲気にそっと寄り添う存在として。陰影や質感を楽しめる左官仕上げの壁、空間全体を均一に明るくするのではなく、必要な場所にだけ灯りを落とす照明計画。

どこか北欧の住まいを思わせる、落ち着いた空間に仕上げています。

室内には、北欧ヴィンテージ家具や名作チェア、雑貨を実際に展示しており、図面や写真だけでは伝わりにくい「暮らしのスケール感」や「キッチン・家具と空間の調和」を体感していただける見学会です。
title: リノベマンション見学会@八幡西区|2026.05.16 | Page No,662 | No.2 | sync-furniture | 株式会社 SYNC | 福岡県 家具工房 | オーダーメイドキッチン


完成見学会|マンションリノベーション

開催日:2026年5月16日 (土)
開催時間:①10:00~12:00 / ②13:30~15:30 / ③16:00~18:00
集合場所:ショールーム(工房2階)
ショールームへお越しいただき、スタッフがマンションへお連れしてご案内いたします(移動時間:片道15分)

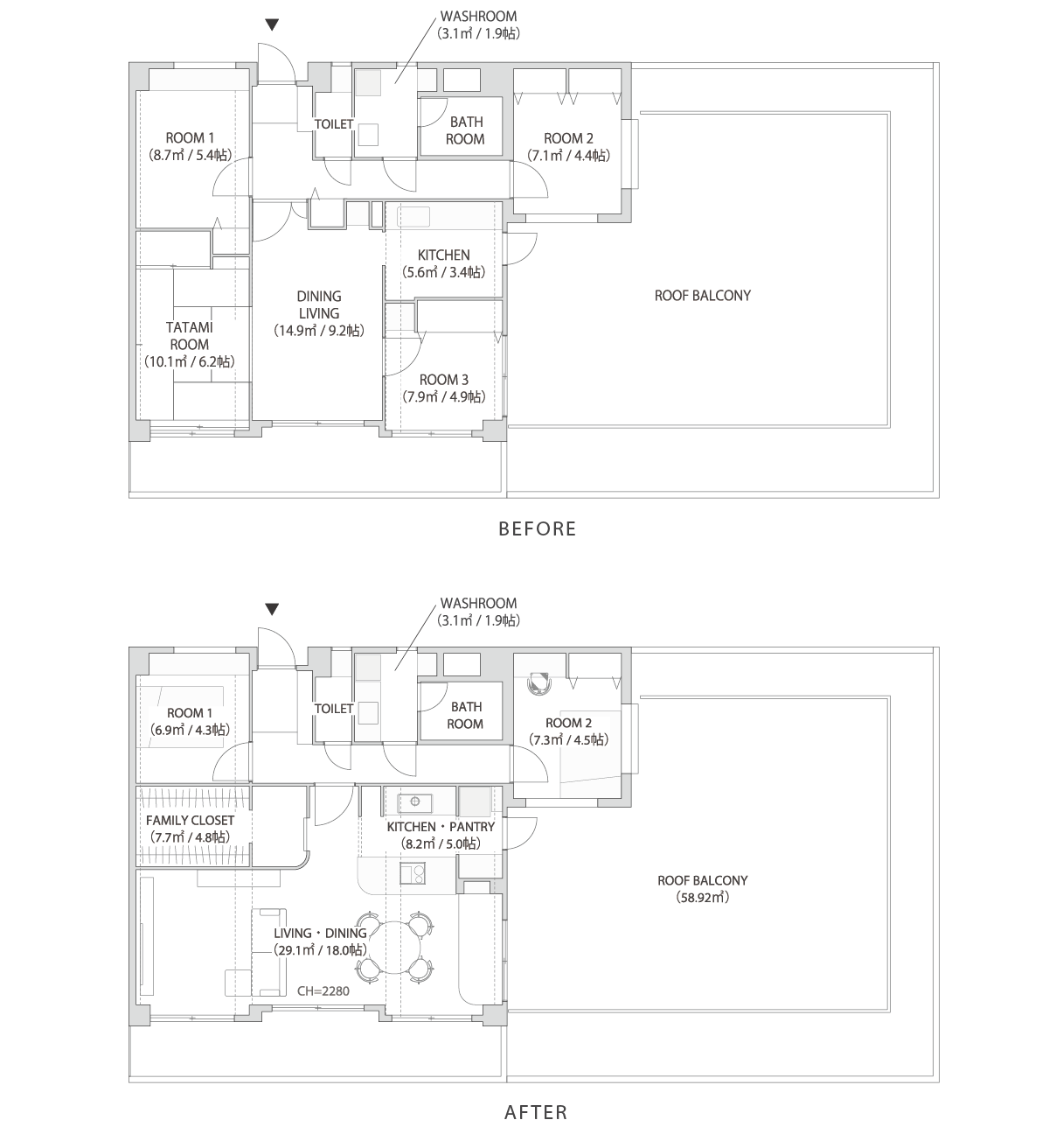
◼︎マンションの概要
間取り: 2LDK + FC
築年数: 35年(1991年10月)
住居面積:82.01㎡
場所:福岡県北九州市八幡西区瀬板

◼︎リノベーションのコンセプト
「北欧ヴィンテージ家具が似合う空間」

◼︎SYNC HAUS(シンクハウス)
プランニングから、キッチン・家具の設計・製作・取付までを、SYNC-FURNITUREがトータルで手がけるリノベーションプロジェクト。「オーダーキッチン・家具屋だからこそできる住まいのかたち」を、ひとつひとつ丁寧に実例として積み重ねていきます。

title: リノベマンション見学会@八幡西区|2026.05.16 | Page No,662 | No.3 | sync-furniture | 株式会社 SYNC | 福岡県 家具工房 | オーダーメイドキッチン

title: リノベマンション見学会@八幡西区|2026.05.16 | Page No,662 | No.4 | sync-furniture | 株式会社 SYNC | 福岡県 家具工房 | オーダーメイドキッチン


お申し込みの注意事項
◾️お申し込みについて
現在、Outlookのメールアドレスからのお申し込みについて、自動返信メールや担当者からのメールが届かない事例が発生しております。
可能でしたら、Outlook以外のメールアドレスよりお申し込みください。

◾️お申し込み完了について
[送信]ボタンを押していただくと、info@sync-furniture-jp.proより自動返信メールが届きます。そちらをもってお申し込み完了となります。
担当者より3~5日以内に、改めてイベントのご案内や注意事項をメールさせていただきます。
※あらかじめ上記メールアドレスを受信できるよう、設定をお願いいたします。

◾️自動返信メール・担当者からのメールが届かない場合
GmailやOutlookなどのフリーメールをご利用の場合、自動返信メールが迷惑メールフォルダに振り分けられることがあります。届かない場合は、迷惑メールフォルダもあわせてご確認ください。

また、自動返信メールが届かず、5日経っても担当者からご連絡がない場合は、お手数ですが再度お申し込みいただくか、お電話(093-201-5080)またはメール(info@sync-furniture-jp.pro)にてご連絡をお願いいたします。

    イベントのお申込み
         
    件名

    Subject

    お名前

    Your Name

    フリガナ

    Your Name Spel

    電話番号

    Phone Number

    メールアドレス

    Email Address

    郵便番号

    Postal Code

    住所 ※マンション名・号室までご記入ください

    Address

     
    開催日

    Date

    第一希望の時間

    Times1

    第二希望の時間

    Times2

    参加人数(お子さまは、年齢もご記入ください)

    Number of People

    その他、ご要望などございましたらご記入ください

    Message

    必須マーク

    Indispensable

     
    [ アンケート ]

    Q1.シンクファニチャーを知ったきっかけを教えてください

    Questionnaire1

    Q2.これまでのご来店状況を教えてください

    Questionnaire2

    Q3.年齢を教えてください

    Questionnaire3

     





    ページトップへ ページトップへ ページトップへ